programme : 75 logements et 2 commerces
maître d’ouvrage : Bouwfonds Marignan
architecte : ECDM architectes – chef de projet : Martin Jaubert
localisation : avenue Pierre Lefaucheux, Boulogne-Billancourt (92)
surface : 5 807 m² SHON
coût : 12.5 M€ HT
livraison : 2014
IMPLANTATION
Le projet B5E se situe à l’angle Sud-Ouest du macro-lot B5, le long de l’avenue du Parc et de la traverse Jules Guesde. Il bénéficie d’une orientation et d’une vue remarquables, puisqu’il fait face au parc du Trapèze, sur lequel il ouvre sa façade Sud. Plus loin dans le paysage, la Seine puis les collines de Meudon offrent un panorama de qualité. Avec le projet B5F, le projet B5E participe à la qualification du front du parc du Trapèze, et lui donne une identité.
VOLUMETRIE ET PRINCIPE
Dans le respect des réglementations applicables et des prescriptions architecturales du macro-lot, le bâtiment se compose en strates offrant différentes typologies, des vues et des cadrages variés, ainsi que des porosités sur le cœur d’ilot. Au rez-de-chaussée, sous une hauteur généreuse, une première strate largement vitrée comporte des espaces commerciaux, l’entrée des logements, et une faille vers le cœur de l’ilot comprenant l’accès à la rampe de parking.
Du premier au quatrième étage, une autre strate contient les premiers niveaux de logements, et établit un contact avec le bâtiment mitoyen B5F. Du cinquième au huitième niveau, la volumétrie se compacifie, pour laisser place à une faille entre le bâtiment B5E et B5F, offrant de la lumière et des vues sur l’intérieur de l’ilot. Un traitement en murs biais permet d’offrir des vues dégagées et d’éviter les pignons aveugles dans cette faille. Dans les deux derniers niveaux, l’attique se positionne en retrait du reste du volume et marque le couronnement par une volumétrie sobre et contenue.
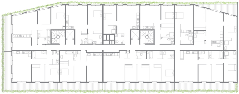
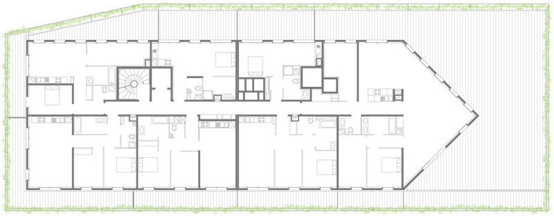
PROGRAMME ET TYPOLOGIES
La programmation du projet est simple. Au rez-de-chaussée, un espace commercial fait face au parc du trapèze et occupe l’angle Sud-Ouest pour une bonne visibilité et une animation du pied de bâtiment. Les logements quant-à-eux sont accessibles par le cœur d’ilot par des chemins et des espaces végétalisés. Deux halls donnent accès aux 78 logements en accession du projet. La rampe d’accès au parking – commune aux lots B5A, B5D et B5E – se situe au rez-de-chaussée, dans la faille entre le bâtiment B5E et B5F. Elle se dissimule à l’est, laissant un large passage vers l’intérieur du macro lot. Habillée par une maille en métal tissé, elle est isolée de l’accès piéton tout en préservant une faille ouverte sur tout la largeur.
MATERIALITE ET USAGE
Un bloc taillé.
Rodin aimait à dire : « dans chaque bloc de marbre, il y a une figure qui sommeille »
En lisière du parc le bâtiment met en relief végétale et minérale par l’affirmation d’une forme simple, faite à partir d’un matériau comme extraite d’un bloc de pierre. La matérialité du projet est affirmée par la sobriété volumétrique et le choix de l’utilisation d’une palette de matériaux extrêmement restreinte. Il y a donc une masse sculptée, compacte, massive en lévitation, suspendu au dessus du rideau de verre des commerces du RDC. Le socle, cette relation directe à l’espace public et au passant est transparent et léger, animé par l’activité commerciale. Le corps du bâtiment et strié par de longues bandes de balcons linéaires qui se déploie sur tout la longueur de la façade sud face au parc pour se retourner à l’angle ouest. Il s’agit de balcon panoramique, ensoleillé, ouvert sur le parc, la vallée de la seine, et les collines de Meudon.
Deux mètres de porte à faux tendu vers le parc sculpté dans la masse d’un béton blanc. Au sommet, un ordonnancement de 5 villas en duplex, légèrement en retrait auquel on accède par un long traveling sur le panorama Parisien.
Usages
La situation privilégiée du macro-lot B5 en général, et du projet B5E en particulier a orienté le projet vers des usages adaptés et spécifiques des espaces, qu’ils soient intérieurs ou extérieurs. Chaque logement possède un espace extérieur. Des balcons d’une épaisseur variant de 50 centimètres à 2 mètres offrent un prolongement des espaces de vie sur les paysages environnants. Dans certains cas, au cinquième étage et au niveau de l’attique, les terrasses sont de véritables pièces extérieures, aménageables, flexibles et généreuses.
Les balcons sont organisés de la manière suivante :
Au Sud et à l’Ouest, la vue sur le parc, puis la Seine et les collines de Meudon offrent à la fois l’orientation et la vue qui peuvent profiter de larges balcons. Ainsi, tous les balcons bénéficiant de cette orientation ont une profondeur de 2 mètres.
Au Nord et à l’Est, les balcons sont plus restreints, afin de faire pénétrer davantage de lumière dans les logements. Leur taille plus réduite est adaptée à l’ambiance du cœur d’ilot, plus intime, et également aux prescriptions architecturales du macro-lot. Des jardinières filantes sont mises en place et contribuent à la vie du bâtiment.

















