Programme : ensemble immobilier de 374 logements
Maître d’ouvrage : Nacarat + Crédit Agricole
Architecte : ECDM architectes – chef de projet : Benjamin Ferrer
agences associées : Rémi Marciano + Mateo Arquitectura
Mission :
Équipe : Franck Boutté Consultant
Localisation : ilot 2B, rue Peyssonnel, Marseille (13), France
Surface : 22 210 m² SHON + 433 m² commerces et services
Coût : 32 M€ HT
Concours : 2013
Label environnemental : NC
Un rock sculpté, facetté, taillé, aux multiples plans polis inclus dans un volume contenu. Il y a d’abord cette minéralité affirmée, de la masse, de l’inertie et du temps. Dureté et durée se conjuguent quand le soleil cogne, instaurant silence et immobilité alors que souffle un vent sec venant du nord. La lumière crue d’un ciel nettoyé par le mistral révèle la matière, sa texture, ses reliefs. Les ombres sont nettes, tranchées, précises comme nulle part ailleurs. Ce climat sec, incisif, appelle des volumes simples, raides, en retenue, sobres, et une austérité contredite par un travail sur la matière qui en révèle ses caractéristiques dans un jeu de sculptures contenues, par des pleins et des vides, des faces et facettes accusées par des ombres noircies, aux contour coupés à l’opinel aiguisé, tranchant. Un même béton blanc texturé par les outils de sa mise œuvre compose l’ensemble des volumes dans une unité et une sobriété de matière. Bâtiment de maçon où les murs sont porteurs, structurels, et la matière joue sur le comportement thermique. La masse et l’inertie lissent les amplitudes journalières conservant une grande stabilité thermique dans les logements.
La matière est le point de départ ; elle vient saturer les contours d’une parcelle, délimiter un espace contenu, définir une intériorité. Le site est rempli à l’extrême de ce que nous autorisent les règles urbaines. Les volumes se complètent s’entrechoquent et se protègent mutuellement du ciel, du vent, du soleil, de la ville, du bruit et du calme. Au centre dans la cour, c’est comme à l’extérieur mais c’est une autre échelle, une autre temporalité ; le monde est pareil mais ne se dit pas de la même manière.
Jardin minéral comme la piazza dei Frutti à Padoue où pas un arbre ne traine.
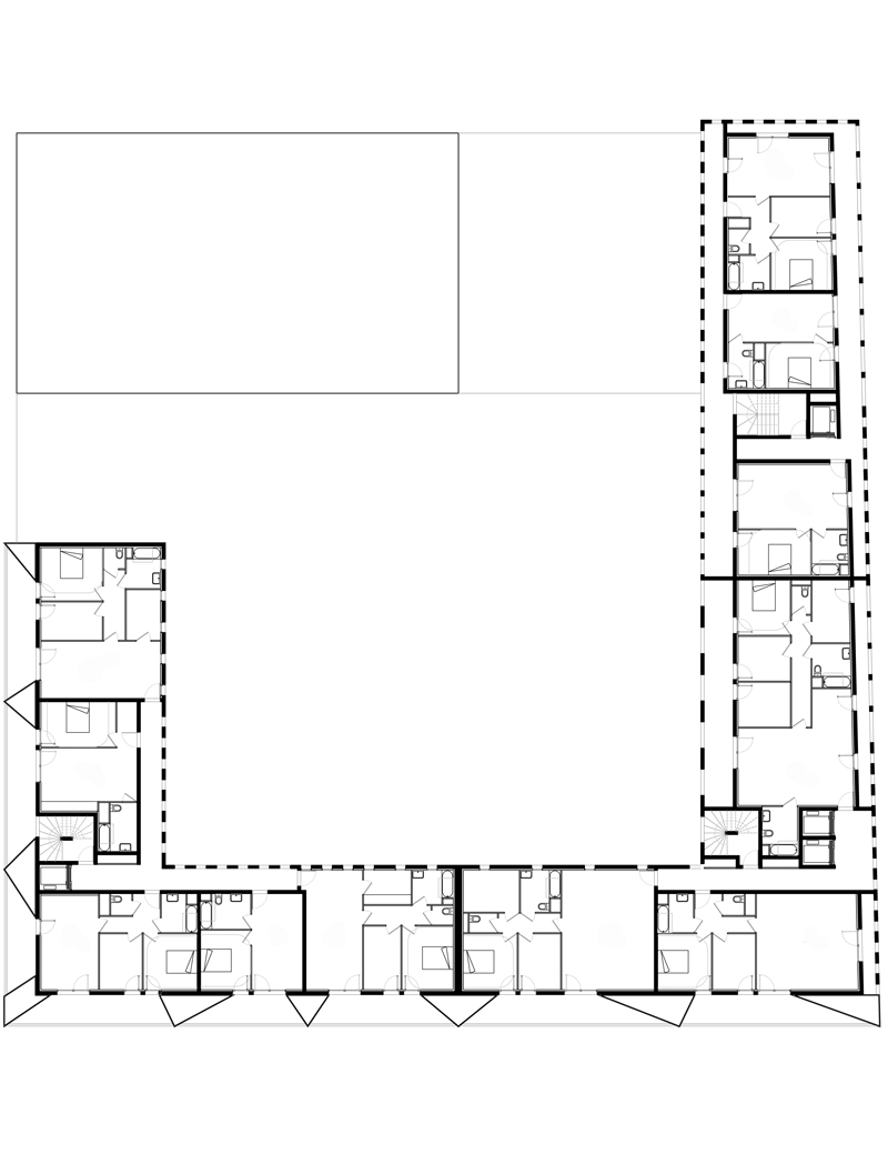
Partant d’une intention urbaine aux objectifs clairs, nous extrudons les limites de la parcelle pour conserver cette idée d’espace contenu. Les blocs regroupés s’enchevêtrent en saturant les limites, en affirmant la compacité de la ville. Les vides frisent, ramassés en une géométrie simple. Ils se glissent et s’intercalent entre les blocs de logements. La liaison avec l’espace public, c’est le vide : des porches verticalisés, des fenêtres urbaines en correspondance qui laissent passer le regard vers, ou au travers, un cœur d’ilot protégé, intime, bien commun des résidents. Le porche est le passage obligé, le dénominateur commun de la résidence, les entrées d’immeubles se faisant depuis le cœur d’ilot ; on se croise, on se toise, on papote. Depuis la cour, on accède aux circulations verticales, toutes éclairées naturellement. Un traveling ouvert sur la ville mène aux logements. Nos logements sont ultra fins : tous sont traversants ; pas un succédané du traversant avec l’accumulation de pièces qui rendent hypothétiques toute ventilation naturelle, mais des séjours avec des doubles façades, des habitats où l’on peut choisir sa façade principale au gré du temps et des saisons. Nos logements sont tous prolongés par de grands balcons ou terrasses : minimum 2 mètres de large, minimum 12 m². De vraies pièces à vivre, complément indispensable d’un logement jamais assez grand : espaces d’articulation avec son milieu, avec son environnement, être chez soi et dans le paysage Marseillais.












