programme : bureaux, logements et commerces ![]()
maître d’ouvrage : Bowfounds Marignan
architecte : ECDM architectes
BET : Terrell International, Franck Boutté
localisation : avenue de France, Paris XIII
superficie : 34 000 m² HON
estimation : 45 M€ HT
concours 2007
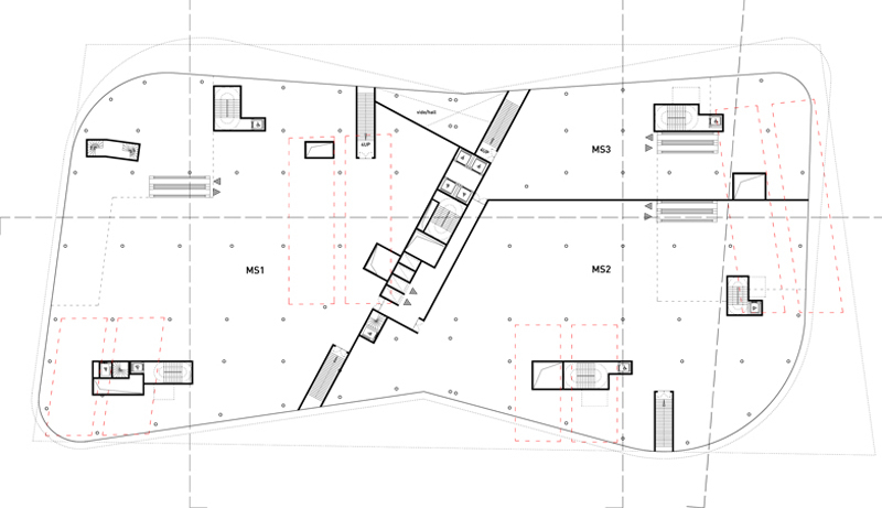
Le propos architectural est somme de diversités, convergence de valeurs au service d’une composition, stimulé par le mixage et l’itération quand la ville appelle une réflexion composite faite d’ordre et de chaos intimement imbriqués. C’est un travail de composition qui mixe écritures, pensées, techniques variées et singulières, cadrées dans leur ensemble par des valeurs communément partagées. Cette sociabilité de la question architecturale porte en elle les gènes de mixité, de transversalité, d’imbrication. Il s’agit de générer un îlot, proposer un morceau de ville, initier de l’urbanité dans sa complexité quand la cité additionne, mélange, imbrique programmes et usages. La ville ne peut se satisfaire de l’atomisation des tâches, de la segmentation des activités qui conduisent à isoler chacun des programmes en objets architecturaux. La ville multiple, plurielle est concrétion, accumulation de rythmes et temporalités, de pratiques et de séquences de vie. L’imbrication tout à la fois du loisir, du travail et du résidentiel permet de retrouver la complexité et les temporalités de la ville construite avec le temps, de la ville faite de sédimentation. Le sens et la richesse de nos agglomérations ne proviennent-ils pas de l’accumulation,la confrontation, l’imbrication et la sédimentation des éléments les composant ? Notre proposition s’inscrit dans cette vision actuelle, contemporaine de la ville où la diversité, la complexité, les rythmes d’activités et d’usages sont donnés comme conditions nécessaires à la réalisation d’un environnement vivant et qualitatif, la cohérence du tout et la diversité de l’ensemble étant seuls aptes au développement d’un cadre de vie permettant des modes de vivre multiples, pluriels, mixtes. La démarche est programmatique, le projet est tranche d’urbanité ; le bâtiment abrite, contient, additionne tout à la fois commerces, bureaux, habitat: mise en œuvre de la diversité avec pour dénominateur commun la définition d’un cadre de vie de qualité. Échappant à tout déterminisme formel, le projet devient composition paysagère. Ainsi notre proposition est-elle d’imbriquer, de mettre en situation des événements improbables, proposer, sans mimétisme ni posture formelle, une sédimentation caractéristique des centres anciens.
The purpose of the project was to create a real vertical mix in order to optimize and improve each function of this typical urban program. The density of the retail program led to spread the building up to the maximum capacity of the plot. The entire ground floor is allocated to the retail except halls of offices and dwellings. Office floors offer a large typological diversity by their non-constant width although they are totally divisible. The fluidity of office floors is increased by the curved facades that avoid the problematic partitioning in the angles. The residential area hangs out on top of the building to take maximum advantage of the light and the views. There, the majority of apartments enjoy a large exterior space and a quality environment thanks to the green roof which is designed like a garden suspended in the clouds.














