Programme : 44 logements et commerce
Maître d’ouvrage : Sogeprom
Architecte : ECDM architectes – chef de projet : Rikje Maas
Mission : Concours 2012
Equipe : NB
Photographe : NB
Localisation : rue de l’Espérance – Cergy (95)
Surface : 3 421 m² SDP, 2 922 m² SHAB + 465 m² SU commerce
Coût : NB
Livraison : NB
Label environnemental : NB
Le projet est situé à côté de la gare, face à la place, dans une urbanité composée tout à la fois d’équipements, de commerces, de bâtiments résidentiels et tertiaires. Dans cet environnement où la mixité prédomine, il s’agit d’apporter une réponse architecturale qui articule des écritures et des échelles de la ville variées pour concourir au parachèvement d’une des centralités de Cergy.
La parcelle est un des éléments d’un plan de la ville structurée par une géométrisation précise de l’espace. La parcelle ne s’inscrit pas dans un interstice urbaine, mais constitue une surface d’articulation d’un paysage protéiforme constitué par un cinéma, une gare, un bâtiment tertiaire et des immeubles d’habitation. Cet ensemble cohérent, typique d’une centralité constitue un paysage varié en formes et en morphologies. En tant que tel, notre terrain s’apparente à un ilot, à un espace autonome, libre de toute mitoyenneté, de toute continuité bâtie.
Dès lors, il y a cette exigence impérieuse qui veut que le bâtiment ne soit constitué que de façades principales. La lisibilité de la parcelle est telle que la construction sera visible sur 360°, avec la possibilité extraordinaire qui est donnée de pouvoir prendre vue et lumière sur toute sa périphérie. L’organisation subtile du plan de la ville permet, si on y prend un peu garde, de n’avoir aucune façade plein nord. Forts de ces constats, nous vous proposons une architecture de plots, une architecture compacte qui permet d’avoir une double orientation pour tous les logements et un traitement des façades de même qualité sur leur ensemble.
Notre proposition s’inscrit dans un travail de composition à partir d’une forme géométrique simple et pure, un cube parfait décomposé en une multitude de carrés parfaitement homothétiques. Nous vous proposons donc un bâtiment sobre en termes de volumétrie mais élégant dans sa matérialité. Inspiré par la géométrie de la parcelle et ses contraintes, le projet part de la base d’un carré, qu’on retrouvera à des différentes échelles du bâtiment, depuis la volumétrie jusqu’au détail.
Le bâtiment a donc une volumétrie compacte et sobre, d’un bon rapport surface habitable / développé de façades, une architecture rationnelle avec peu de décrochés, afin de garantir une enveloppe performante, peu déperditive sur le plan énergétique. Une volumétrie qui est à l’échelle de la place des trois gares et en harmonie avec l’architecture qui l’entoure.
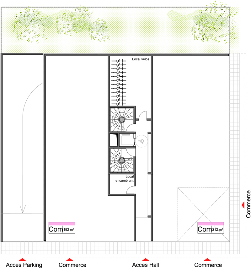
Le cube est positionné sur un socle de commerces légèrement décalé qui met le corps du bâtiment en lévitation tout en permettant d’affirmer la commercialité des surfaces à RDC. Toutes les surfaces au RDC sont largement vitrées, vivantes et at-tractives, concourant ainsi à l’animation et la liaison entre la nouvelle placette et la place des trois gares.







