Programme : aménagement de la ZAC Seguin en un immeuble à vocation tertiaire
Maître d’ouvrage : Nexity
Architecte : ECDM architectes – chef de projet : Kikyun Kim
Mission : concours 2011
Equipe : NB
Photographe : NB
Localisation : Secteur du Trapèze, ZAC Seguin – Boulogne Billancourt (92)
Surface : 60 000 m² SHON
Coût : 150 M€ HT
Livraison : NB
Label environnemental : NB
Le Grand Paysage
La réalisation d’un point émergent, d’un bâtiment qui se déploie au-dessus du vélum Boulonnais est l’occasion de repenser le rapport qu’entretient le nouveau quartier du Trapèze avec le Grand Paysage. Cette ponctuation met en exergue le caractère métropolitain du site en générant un dispositif de repérage lointain. Par son statut, sa dimension et les valeurs qu’il porte, le Trapèze est un territoire singulier constitutif du Grand Paris. Le site est emblématique des mutations qui ont transformé nos villes industrielles, de ces changements de paradigmes qui ont permis la mise en œuvre d’un environnement d’une grande complexité prenant en compte les attentes d’une société désormais postmoderne. Dès lors, la verticalité à instaurer doit permettre de rendre lisible l’expression d’un territoire où l’aménagement définit un cadre de vie pensé comme un savant équilibre entre minéral et végétal, entre pleins et vides imbriquant la complexité d’un territoire dense et attractif. Nos propositions ont été pensées comme des éléments singuliers d’un environnement urbain mixte, composite, où le résidentiel, le tertiaire et les espaces verts forment un ensemble. Les larges espaces libres de la Vallée de la Seine comme les amples perspectives libérées sur le Trapèze au-travers d’un vaste parc, de sentes, d’un bâti fragmenté organisé autour d’ilots ouverts livrent une lecture horizontale et tendue du registre urbain. Il y a donc dans nos projets une composante horizontale affirmée qui vient cadrer, délimiter les limites du parc et accompagner les rives de la Seine et des émergences, des ponctuations envisagées en résonance avec d’autres points culminants de la boucle du fleuve tels que la tour Horizons ou les verticalités à venir de l’Ile Seguin.
La Vallée de la Seine est, dans sa traversée du Grand Paris, ponctuée de tours. On pense à La Défense, au Front de Seine, à la tour Eiffel, au quartier de la Gare de Lyon, ainsi qu’à bon nombre d’autres interventions architecturales disséminées sur le linéaire du fleuve, la géographie fluviale et son paysage favorisant les émergences. Dans le paysage Boulonnais des abords du fleuve, il nous a semblé primordial que des connivences s’installent entre les éléments qui dépassent le gabarit général du quartier. Nos deux projets sont pensés en relation avec une ligne d’horizon propre au site. Le contexte ici est à la fois le quartier et le Grand Paysage. Nous avons pensé nos projets comme des entités en résonance avec des émergences existantes : la tour Horizons, la tête du Pont de Sèvres, des émergences à venir comme celles prévues sur l’Ile Seguin. Ces trois entités constituent un triangle dont le projet vient tenir un angle, une extrémité. Dès lors, il s’agit de proposer un centre de gravité et un principe de gradation volumétrique qui instaurent une filiation avec le gabarit des immeubles érigés le long du quai et une complicité avec la proue de l’Ile Seguin.
Forts de ce constat, nous avons déplacé le centre de gravité de nos projets vers le Nord-Ouest de la parcelle afin d’établir une filiation avec les bâtiments qui longent le quai, mais surtout de ne pas générer un effet de proue qui rentrerait directement en concurrence avec celle de l’Ile Seguin. En effet, la proue de l’Ile Seguin a une légitimité géographique qui ne laisse aucune place à ce qui serait de facto un ersatz. La forme de la parcelle, ce triangle arrondi ne constituant pas une proue en soi, toute analogie à la batellerie serait donc fortuite. D’ailleurs un trapèze n’a pas de proue. Dès lors nos projets ont été conçus pour permettre le cadrage de vues et de perspectives, en mettant en œuvre, à la jonction du parc et du quai, une ligne de partage du paysage. Les exigences du programme nous ont conduits à concevoir deux projets de natures différentes, structurés par deux approches distinctes d’assurer la sécurité des personnes et des biens. Réfutant tout a priori formel, nous avons choisi de développer deux projets, deux conceptions structurées par deux possibilités réglementaires d’organiser la hauteur.
Origami
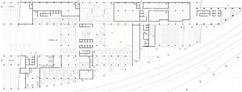
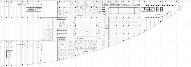
La demande spécifique de construire la hauteur comme un cumul de plans de références au titre de l’accessibilité des moyens de lutte contre l’incendie nous a conduits à nous interroger sur la manière dont les différentes composantes du projet peuvent se superposer afin de générer un déploiement du territoire. Réfutant toute idée de réaliser quelques éléments infra-structurels, toute voirie ou rampe, tout élément exogène à la nature même d’un bâtiment tertiaire, nous vous proposons un projet conçu comme le déploiement d’un territoire dans une logique paysagère. A l’instar d’une Babylone des temps modernes, il s’agit de construire sur le construit, d’habiter les toitures, de leur donner une valeur d’usage. Il s’agit d’un projet tectonique, d’origami où le territoire est plissé en plans successifs. Le socle, est envisagé comme un événement topographique, une strate inclinée, un jardin déployé en plans successifs. Extrusion parfaite de la parcelle, le socle délimite parfaitement l’ilot en s’inscrivant rigoureusement dans les alignements et gabarits des ilots qui bordent le quai. A l’extrémité, sur la pointe, le volume se soulève pour pincer une vue privilégiée sur le parc. Sur ce socle est posé un cube en lévitation, à la base tronquée par la topographie du socle. Les volumes sont articulés par des césures, par des strates paysagées – interfaces entre végétal et minéral. Ce cube est perforé au centre par un large patio traversant l’ensemble du projet sur 89 m de haut. Ce dispositif offre une lecture à contre-jour du volume et met en exergue la légèreté de la volumétrie. L’ensemble est surmonté par une serre, vaste jardin vertical qui vient achever, dans un effacement progressif, la verticalité. L’élancement qui caractérise les tours n’est ici pas de mise, la hauteur limitée à 89 m nous conduit à mettre en valeur d’autres qualités de la hauteur.
Une tour induit autoritairement des valeurs et canons : densité, compacité, rationalité. Sans renier ces qualités et leurs évidentes capacités à répondre à des attentes propres au programme, notre projet les réinterprète et les complexifie dans des oxymores architectoniques. Il s’agit d’être compact et léger, dense et élancé, rationnel et composite. Notre projet s’est construit avec la volonté d’échapper aux fatalités formelles liées à la verticalité pour développer cette notion de paysage élargi, quand on pourra voir loin et être vu de loin. Dès lors la façade se devait d’être à la fois limite, alignement, constitutive d’urbanité, et également élément paysagé, paysage vertical fait de pleins et de vides, de premiers plans et de profondeurs de champs s’apparentant à un filtre, un voilage, pour tendre vers une architecture la plus ténue possible quand il s’agit de mettre en scène un cadre de vie plutôt qu’un bâtiment. La spécificité de la demande nous permet de vous proposer un projet ultra spécifique, atypique, permettant de réinterroger la hauteur tant d’un point de vue formel que dans les usages et valeurs que cette proposition autorise.
Une verticalité ouverte
Il s’agit donc d’une verticalité ouverte, pour un bâtiment accessible conçu sur le principe d’une organisation qui induit un rapport avec l’environnement novateur. Le bâtiment s’extraie du sol progressivement, conscient de son ancrage, de ce qui est la base de son innervation. Il s’élève en pente douce comme une invitation à le parcourir par des chemins détournés. Les terrasses filent, les pleins et vides s’entremêlent. En s’élevant, la construction devient plus légère, plus transparente, de larges terrasses génèrent des porosités entre intérieur et extérieur. Au sommet sur les 20 derniers mètres, le minéral s’efface presque complètement au profit d’un vaste jardin suspendu déployé verticalement. Sans mimétisme il propose des connivences fortes avec la tour Horizons, marqueur de l’autre extrémité du Trapèze. Nous proposons un bâtiment composé de trois corps : un socle, un fut et un jardin suspendu, une gradation en trois temps de la minéralité vers la légèreté et l’abstraction.




















