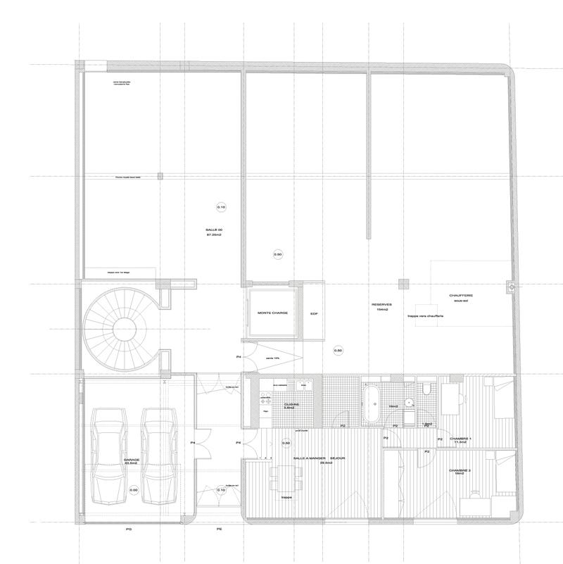
programme : fondation d’art contemporain
maître d’ouvrage : Fondation MRCLBRNT
architecte : ECDM architectes
localisation : rue du Centenaire – Montreuil (93)
concours : 2003
Un bâtiment industriel transformé en boîte à outils où dans chaque compartiment sont classés, archivés, répertoriés, présentés des œuvres d’art de notre temps. A Montreuil, rue du Centenaire la nostalgie n’est plus de mise, le passé n’induit plus le présent de façon littérale. Le destin urbain n’est plus linéaire. Dans ces friches industrielles, un cube de 20 x 20 x 10, objet de la future Fondation MRCLBRNT. Le projet consiste à re-lifter ce bâtiment, retrouver l’illusion de la jeunesse, faire oublier un passé industriel fait de labeur et de contraintes pour devenir objet culturel abritant quelques œuvres majeures de l’après-guerre.
Du bâtiment il faudra retendre la peau, gommer les rides, retrouver le lisse et l’éclat de la jeunesse, puis retrouver des formes là où il faut. Les fenêtres en étages, en excroissance du corps du bâtiment sont des implants greffés sous la peau, émergeant en 8 protubérances. En parti basse la peau est re-tendue vers l’intérieur au droit de l’orifice par lequel on pénètre dans la boite, les injections préalables garantissent la parfaite planéité de la surface, le grain est fin. Le bâtiment est maintenant protégé des outrages du temps par une peau constituée d’une résine souple et élastique. L’opération se termine par la scarification du nom du bâtiment dans l’angle supérieur d’une façade aveugle MRCLBRNT.
In rue du Centenaire in Montreuil nostalgia is no longer appropriate ; the past no longer leads up to the present in a literal manner. The destiny of the urban fabric no longer unfolds in a linear fashion. Here, an industrial building is transformed to become a toolbox, a space within which contemporary works of art are to be classified, conserved and presented to the public. Lying within industrial wasteland, this parallelepiped of 20x20x10 metres is to house the future Fondation Marcel Brient – MRCBRNT–. The project consists basically in giving the building a facelift; its air of youth restored, a structure with a past of industrial labour and grind will be transformed into a cultural venue that houses major works of post-war art.
The skin of the building has to be ‘re-stretched’; wrinkles have to be smoothed out so as to give the skin its former glow; and, where necessary, work has to be done to restore the structure’s figure. The windows on the various floors become bodies that emerge from the surface of the façade, like eight implants added beneath the skin. At the lower level, the skin is once again tightened, drawn inwards to the right of the opening by which one enters the building; the perfect smoothness and fine grain of the skin here is guaranteed by certain preliminary injections of ‘filer’. Thus the building is now protected against the ravages of time by a supple and elastic skin. The operation ends with the scarification of the name –MRCLBRNT– in the upper corner of the blank façade.








