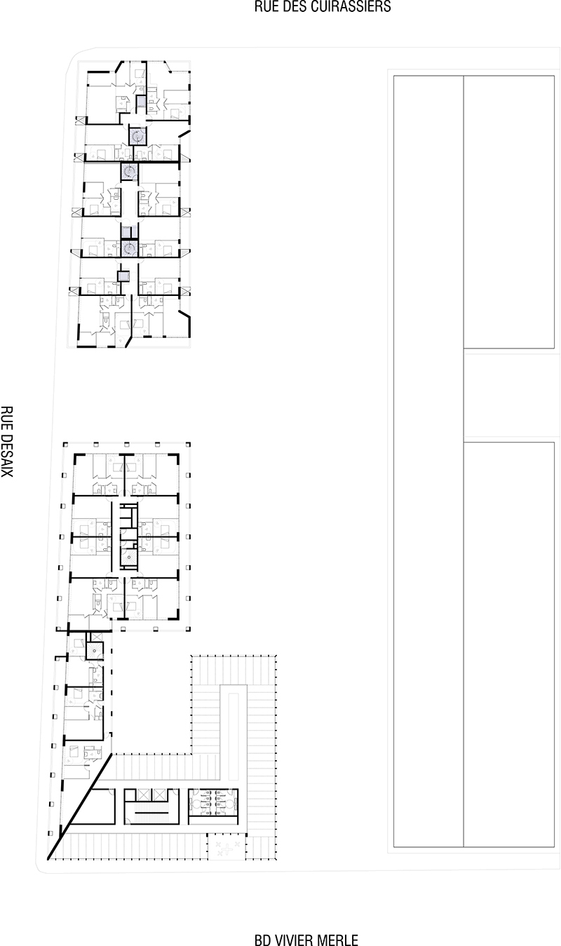
programme : construction d’un ensemble immobilier comprenant logements, bureaux, et équipements
maître d’ouvrage : Les Nouveaux Constructeurs
architecte : ECDM architectes – chef de projet : Benjamin Ferrer
localisation : rue Desaix – Lyon (69)
superficie : 23 514 m² SDP
Concours 2013
La parcelle est caractérisée par la rencontre et l’imbrication d’une organisation urbaine lyonnaise issue du cardo decumanus et d’une architecture héritée de la modernité. L’espace est géométrisé, tenu par une superposition de plans orthogonaux, déclinés de la petite à la grande échelle. Un mail d’arbres rectiligne apporte sa contribution martiale à ce qui a aussi été un lieu de garnison. Il en résulte un tartan urbain où les jeux réglés et structurants de la ville sont déclinés en droites parallèles, en angles droits, en ponctuations et trames organisées.
Nous sommes en présence d’une urbanité constituée, d’une histoire complexe structurée par de grandes vacuités, des espaces et des échelles dilatés. La barre Desaix est à la fois un vecteur de cette trame, un front urbain de 2 hectomètres, et une texture constituée d’une trame d’éléments architectoniques à dimension humaine : balcons, fenêtres, garde-corps, etc.. Tournée vers le sud, elle fait barrage au vent dominant pour dégager un vide qualifié comme une ombre lumineuse inscrite entre son socle et les limites de l’espace public.
Le jardin, espace libre, est un vide légitime, une contrepartie géométrique à une autre géométrie, un volume vide adossé à un volume construit. C’est ce rapport d’altérité que notre projet vient ré-envisager, partant du constat que le vide n’a pas tenu toutes ses promesses et qu’en vis-à-vis d’un immeuble d’habitation digne, dont les qualités en termes de vue, d’intimité, de lumière et d’ensoleillement sont incontestables, le jardin, le sol, a généré peu d’usages.
Finalement c’est le dynamisme du quartier qui rend plus lisible la vacuité de cet espace qui, finalement, n’est pas tout à fait un jardin. Notre projet est donc une réflexion qui s’inscrit dans l’histoire du quartier de la Part-Dieu, avec comme objet de s’inscrire dans la densification d’une hyper-centralité. La proximité immédiate d’une gare avec cette très forte concentration de moyens de transports, d’équipements et de services induit une ville dense et attractive.
Le projet met en résonnance des vides structurants et des bâtis concentrés, saturant en de volumes simples des alignements, percées visuelles, voies de mobilités préférentielles et espaces publics. Les vides et le construit sont imbriqués, assemblés, tissés dans un tartan urbain en 3 dimensions. Il y a cet axe ténu, nord-sud qui vient se glisser sous la barre Desaix et qui annonce un nouveau maillage du quartier, une structure organisant la mutation en cours du quartier cadré à son extrémité par un canyon compris entre deux bâtiments bruns. Le jardin devient une cour, un espace de déambulation est-ouest, plus large qu’un boulevard urbain comme le Bd Marius Vivier Merle. H égale L, cet espace est aussi large que les bâtiments qui le bordent sont hauts. Cet espace est le lieu fédérateur de la parcelle, l’espace qui organise les relations entre le bâtiment de Zumbrunnen et les constructions à venir. L’ensemble des accès aux logements s’effectue depuis le jardin, passage obligé des résidents et passage possible pour le quartier. Sur 6.30 m, l’ensemble des bâtiments accueillent des services, des commerces, une crèche, des halls, des ateliers. Le long de la rue Desaix, un long linéaire de vitrine de commerce de 6.30 m de haut qui se déploie sur toute la longueur des 200 m de la parcelle et qui à chaque extrémité tient les angles et les anime par des vitrines qui se retournent.
Les surfaces commerciales sont scandées de colonnes en forme de nénuphars, de 6,50 m de haut, dont la base est fine et qui s’élargit en partie haute jusqu’à créer un toit, hommage à la Johnson Wax, ponctuation venant prolonger le mail de platane légué par l’armée française, ponctuation ambigüe, entre intérieur-extérieur, entre végétal et minéral. Desaix croise Marius Vivier Merle. Au sud les logements, à l’est les bureaux, une coupe d’onglet donne à voir deux facettes d’une même entité, mixité pliée sur angle droit, ligne de partage de deux paysages urbains. A la circulation du boulevard : les bureaux, au calme du sud : les logements. Deux plans de la ville.
















