programme : construction d’un projet immobilier de 3 immeubles de bureaux
maître d’ouvrage : Les Nouveaux Constructeurs + AG Real Estate
architecte : ECDM architectes – chef de projet : Benjamin Ferrer
architectes associés : Baumschlager & Eberle
localisation : place Victor Hugo – Issy Les Moulineaux (92)
superficie : 24 834 m² + 20 634 m² + 20 268 m²
concours 2015
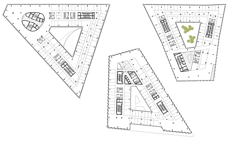
Le projet est la conception interdisciplinaire d’un paysage urbain. Le plan directeur proposé pour le nouveau cœur de ville tertiaire d’Issy les Moulineaux est le résultat d’un processus en coopération, de plusieurs ateliers, tenus entre les architectes et les ingénieurs de notre équipe. Cette méthode nous a permis de créer un projet en contact nécessaire avec la réalité et de réaliser l’ambition d’un projet urbain de haute qualité.
Le site se trouve à l’intersection de deux tissus urbains : à l’est, avec l’architecture des sièges de bureaux des 30 dernières années de grande échelle, tandis qu’à l’ouest, le tissu est plus ancien et plus à l’échelle du piéton avec une structure d’habitation. L’objectif est non seulement d’achever un développement qui réconcilie ces deux échelles de densité de ville, mais de créer un quartier qui s’ouvre vers la ville et profite de son environnement. Le projet propose une disposition de trois immeubles en mouvement décalé, séparé par une coulée verte, le parc. Et c’est ce vide de la ville, cette « promenade dans le parc » qui est le conciliateur des deux tissus urbains précédemment décrits.
Tous les citoyens et utilisateurs peuvent ainsi profiter d’une générosité d’un cœur d’îlot ouvert exemplaire. Il s’agit ici d’un espace de rencontre entre les habitants de la ville et les utilisateurs des nouveaux bureaux. La promenade verte est un espace qui favorise le dialogue et qui offre activité, dialogue et repos en même temps. Largement visible et identifiable depuis la place Victor Hugo et depuis la mairie, les immeubles de bureaux s’intègrent au contexte existant et créent une véritable référence au sein du quartier. Ce jeu de volume en quinconce permet d’organiser radicalement mais aussi dynamiquement les fonctions dans l’espace. Ainsi, de par leur implantation en V, ce sont les pignons des immeubles qui marqueront les adresses dans le quartier.







