programme : cité municipale de Bonneuil-sur-Marne
maître d’ouvrage : SADEV 94 pour le compte de la mairie de Bonneuil-sur-Marne
architecte : ECDM architectes – chef de projet : Benjamin Ferrer
bureau d’étude structure : EIFFAGE CONSTRUCTION Val de Seine
bureau d’étude fluide : SNC LAVALLIN
entreprise générale : EIFFAGE CONSTRUCTION Val de Seine
localisation : 3 rue Ampère, IGNY (93)
surface terrain : 3800 m²
surface construite : 7045m² SHON
surface utile : 4500m²
coût : 14 M€ HT
concours 2011
Le contexte dans lequel le nouvel hôtel de ville sera implanté est le point de départ de notre réflexion. Ici plus qu’ailleurs, l’hôtel de ville devra articuler, fédérer des paysages urbains d’une grande diversité, concourir à la mise en oeuvre d’une nouvelle polarité à haute valeur symbolique dans un environnement urbain hétérogène. L’intersection de deux voies majeures de Bonneuil-sur-Marne, entre l’avenue de Verdun et la route départementale 19 constitue un carrefour stratégique à la lisière d’urbanités fortes et confère à notre intervention un rôle d’interface entre les différents territoires de la ville. C’est un bâtiment fédérateur que nous vous proposons, un bâtiment qui articule la ville moderne et la ville ancienne, un bâtiment qui participe à la défi nition d’un paysage urbain, un bâtiment qui porte les valeurs d’une société ouverte sur son environnement. C’est donc autour de la définition d’un espace ouvert, un espace mettant en scène la ville, organisant des services et des programmes ouverts aux Bonneuillois, un lieu animé par ses acteurs et utilisateurs. Il s’agit d’un lieu vivant et attractif où le dynamisme de Bonneuil est donné à voir pour une administration proche et citoyenne.
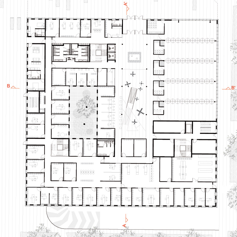
Fonctionnement général
Le volume de la Mairie se décompose en trois niveaux dont les deux premiers sont destinés à accueillir les services aux publics tandis que le dernier niveau accueille les élus, le maire et ses adjoints. Le dernier niveau glisse et permet de créer côté Sud une terrasse associée à l’espace détente du personnel et côté Nord un porte-à-faux au dessus du parvis marquant et protégeant l’entrée de l’hôtel de ville. La conception d’un bâtiment développé sur trois niveaux nous permet de rester à moins de 8 m au dernier plancher accessible et de gérer l’ensemble de l’Hôtel de Ville comme un seul et même volume. Cette unité spatiale permet une bien meilleure fluidité entre les niveaux avec des escaliers ouverts, des percées et continuités visuelles, un meilleur fonctionnement en limitant les sas et les portes coupe-feux, ainsi qu’une meilleure accessibilité en terme de maintenance et d’exploitation. Pensé comme véritable incubateur de la ville, l’hôtel de ville organise ces trois niveaux autour d’un grand hall atrium ainsi que deux grands patios plantés. Largement ouvert et pensé comme continuité du parvis, l’atrium constitue un espace d’entrée de près de 300 m². C’est un lieu ouvert, accueillant, un espace citoyen où circulent et s’échangent les informations et les services de la commune de Bonneuil-sur-Marne. L’espace d’accueil se développe en longueur dans l’axe du bâtiment et sur toute sa hauteur. De la lumière naturelle pénètre par une longue verrière zénithale, et par une large baie vitrée délimitant un patio arboré. Le projet tire parti de la géométrie particulière de la parcelle pour créer au dernier niveau une large ouverture orientée vers l’avenue de Verdun. Cette géométrie, associée au bureau du maire ainsi qu’aux espaces de réunion et de réception dédiés offre un belvédère sur la ville ancienne de Bonneuil-sur-Marne et met en avant la relation entre le maire et ses habitants.
















