programme : construction d’un ensemble immobilier comprenant des bureaux et un équipement sportif
maître d’ouvrage : Emerige
architecte : ECDM architectes – chef de projet : Kikyun Kim – Boris Girin
localisation : 2-6 rue Gerty Archimède – Paris XII
superficie : 9665 m² SHON (bureaux) + 1514 m² SHON (gymnase)
Concours 2013
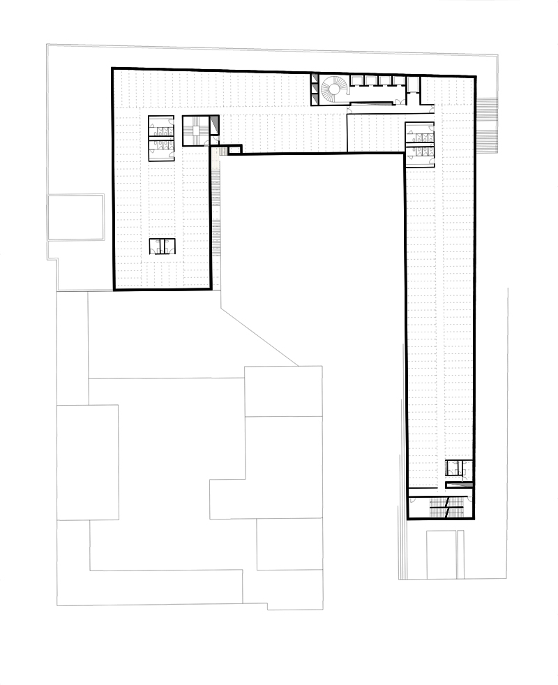
Une école et maintenant un gymnase, deux équipements publics majeurs sertis dans un nouvel espace parisien compris dans une emprise urbaine ceinturée de façades secondaires. La constitution de cet espace public est le point de départ du projet. Il s’agit d’accueillir, de faire cohabiter des programmes, des populations, des architectures, des gabarits variés dans une unité de lieu aux dimensions réduites.
Il y a d’abord la question de l’échelle de cette rue en impasse qui se dilate en une place. Nous avons cherché un référent non seulement en termes de spatialité mais aussi en termes de situation urbaine singulière. Nous avons pensé à un certain nombre de lieux à la géométrie comparable, pour finalement analyser et tirer enseignement du modèle urbain que propose la Place de Furstenberg dans un Paris constitué. Un terreplein central, quatre arbres, un espace contenu, un gabarit constitué, contrecarrés par des langages architecturaux multiples et des volumétries variées.
Nous avons commencé le travail volumétrique afin de donner au gymnase toute sa place, afin que celui-ci soit visible, ouvert, accueillant. Une autre exigence fondamentale était de proposer une organisation qui permette à la salle de sport et à la salle polyvalente de bénéficier de lumière naturelle généreuse avec leurs vestiaires et autres surfaces rattachées en liaison directe. La salle principale est implanté pour bénéficier de l’homogénéité de la lumière naturelle du nord ; ainsi nous avons implanté la grande salle parallèlement aux voies ferrées afin que la lumière du nord pénètre perpendiculairement à la salle d’évolution avec une intensité douce et répartie, cette ouverture sur le réseau ferré permettant en outre de protéger l’intimité des sportifs. Un patio intérieur permet de démultiplier l’apport de lumière naturel dans le programme. Aussi l’accueil est traversant, avec en fond de perspective un patio arboré, un volume extérieur lumineux.
On pénètre dans le gymnase en traversant une façade vitrée; un sas, puis une galerie transversale ouvrant sur une large trémie d’escalier menant aux aires de sport. Une belle hauteur sous plafond de 3.20 m. Les matériaux sont pérennes, les matières naturelles ; de la pierre au sol, du bois pour les faux-plafonds, des séparatifs en parpaings – pose soignée, rejointoyée, finition peinte. Une attention particulière est portée à l’acoustique du lieu avec des panneaux absorbants en bois perforé disposé en hauteur.














