programme : construction d’un ensemble immobilier mixte de bureaux et un commerce ![]()

Aménageur : SEMAPA
Maître d’ouvrage : OGIC et Sogelym Dixence
architecte : ECDM architectes – chef de projet : Laurent Lustigman
photographe : Benoit Fougeirol
localisation : rue Albert Einstein, Paris XIII
superficie : 6135 m² SHON
coût : 14 M€ HT
Livraison : 2014
C’est une architecture de pignon que nous vous proposons, une architecture structurée par la façade étroite du bâtiment, par son plus petit coté, par son ouverture sur le boulevard du Général Jean Simon. Cette architecture de pignon induit une volumétrie singulière avec un traitement spécifique de l’extrémité d’un volume extrudé. Aussi le bâtiment s’amincit, se réduit, délimité en partie haute par deux plans inclinés pour proposer un faitage. Il s’agit d’échapper à la tyrannie du cube archétype du bâtiment tertiaire pour proposer une architecture plus ambiguë empruntée à la dignité des maisons ayant pignon sur rue. Ceci résulte de la volonté d’inscrire le bâtiment dans la mutation en cours d’un paysage de frange parisien en un quartier urbain.
La volumétrie du projet est le fruit d’une extrusion, d’un volume tendu, étiré entre le boulevard du Général Jean Simon et le square public de la rue Albert Einstein. Bloc minéral de granit gris bleu caractéristique de la pierre du Hénault, sculpté à la serpe dans une recherche de finesse et d’élancement. Monolithe à la minéralité affirmée, percé, découpé de larges baies en quinconce venant se dilater en partie basse pour accueillir un commerce, un pied d’immeuble, annoncer un rapport au sol constitué d’un volume de soubassement généreux, d’un soubassement qui absorbe la béance du passage de la petite ceinture. Le corps du bâtiment se développe sur un jeu de quinconce, géométrie unificatrice prolongée en toiture pour mieux révéler les pans inclinés de la toiture. Les baies sont larges, hautes, hors d’échelle dans l’affirmation d’un luxe simple, allège de 80 afin d’offrir la vue depuis une position assise, vitrage toute hauteur pour que la lumière naturelle pénètre largement dans les espaces de travail, double vitrage à store intégré afin de contrôler au mieux l’apport lumineux et la qualité de la lumière, l’ensemble dans un écrin de pierre granitique, résistant, pérenne, à forte inertie protégeant une isolation continue.
A l’extrémité ouest face au square public, un pan tronqué sur les quatre niveaux supérieurs dégage une large terrasse venant se caler parfaitement avec la volumétrie du bâtiment voisin – jeu architectonique parfaitement relayé par une liaison en partie basse mettant en relation la placette de la Petite Ceinture à l’est et le square public à l’ouest.
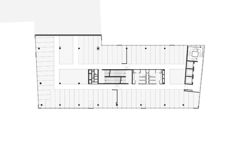
A l’extrémité est, une façade pignon assise sur une fine bande de terrain de 5 mètres de large calée le long du tunnel de la petite ceinture. C’est à cet emplacement que nous implantons le hall d’accueil et que nous développons la circulation verticale du bâtiment, des circulations ouvertes et libres, l’escalier encloisonné se trouvant dans la partie centrale de l’édifice. Plaqué le long de la façade des ascenseurs panoramiques, de larges escaliers ouverts mettent en scène les déplacements verticaux par une mise en relation fluide et ouverte des différents niveaux entre eux. Il s’agit là de proposer une meilleure mise en relation de plateaux de bureau par des espaces moins formels, ouverts sur le paysage avec de larges escaliers non encloisonnés, traversés par des ascenseurs panoramiques, espaces ponctués des salles de réunion largement vitrées. Il s’agit ainsi de communiquer de façon plus douce et plus naturelle entre les niveaux, de lutter contre la superposition de surfaces de bureaux articulées par des escaliers et ascenseurs nécessairement encloisonnés pour mettre en scène dans un travelling vertical le paysage ouvert de l’est parisien.












