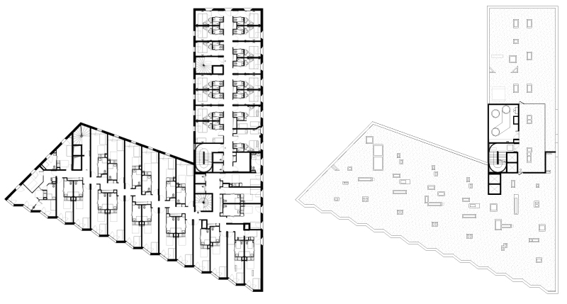
Programme : réalisation d’un hôtel, une résidence étudiante et une surface commerciale
Maître d’ouvrage : Adim
Architecte : ECDM architectes – chef de projet : Laurent Lustigman
Mission : mission complète d’Architecte
Équipe : Math (Structure, Fluides, Électricité, Thermique, Économiste, Ascenseur et VRD) / Emacoustic (Acoustique)
Photographe : Benoît Fougeirol
Localisation : quartier des Terres Neuves, Bègles (33), France
Surface : 7 000 m²
Coût : 9 M€ HT
Livraison : 2017
Label environnemental : HQE
L’opération de renouvellement urbain du quartier Terres Neuves est située à Bègles, au sud de l’agglomération bordelaise.
La position en angle de l’avenue Jean Jacques Bosc et de la future « rambla » dans le prolongement de l’avenue Alexis Capelle, son rôle à la fois d’entrée et de façade pour la future place des Terres Neuves, confère à cet ilot une importance primordiale.
La volumétrie de l’ilot H intègre le plan urbain de Tania Concko par sa découpe qui respecte les alignements et grands axes projetées. Ce qui fait de cette parcelle non pas un fragment urbain insulaire mais un véritable élément singulier appartenant à un tout.
Nous avons cherché dans les limites des contraintes des programmes de l’ilot, résidence étudiante, Hôtel et activités commerciales, à générer un bâtiment à forte compacité. Un traitement architectural par alternance de verre transparent et translucide permettra de masquer les contingences techniques liées au fonctionnement du bâtiment.
Sur ce socle animé et saturé d’activités, le projet s’élève sur sept niveaux d’étages résidentiels dont la hauteur n’excède pas 25m en limite d’acrotère. La façade est habillée d’un bardage en tôle d’aluminium ondulé. Une lasure comportant un pigment métallisé et nacrée reflète la lumière dans de douces ondulations dont les teintes irisées oscillent entre le rouge et le doré. La perception de la façade joue avec le flux et la distance des déplacements automobiles, piétons, cycles pour offrir une lecture singulière en fonction de la vitesse et de la position géographique.











