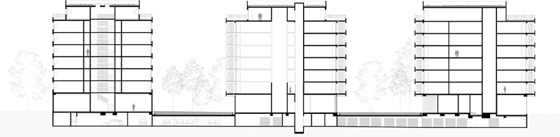
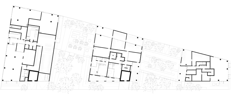
Programme : construction d’une résidence étudiante de 150 chambres et de
73 logements sociaux
Maître d’ouvrage : Vinci Immobilier
Architecte : ECDM Architectes – Chef de projet : Marc-Antoine Galup
Mission : mission complète d’Architecte – Mandataire
Équipe : Egis (Structure et HQE) / Iliade (Fluides et Économie) / Plan B (Paysage)
Perspectives : ALMA Studio
Localisation : Vénissieux (69), France
Surface : 8 980 m² SDP
Coût : 12 M€ HT
Livraison : 2023
Label environnemental : –








