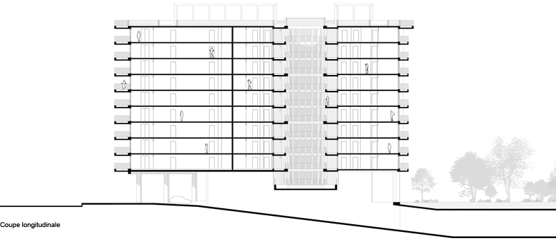
Programme : construction d’un ensemble de bureaux et de logements (Lot 4 – logements)
Maître d’ouvrage : BNP Paribas Immobilier
Architecte : ECDM Architectes – chefs de projet : Kai Diao, Anca Radu et Benjamin Ferrer
Mission : mission complète d’architecte
Équipe : Chartier Dalix (Architecte Coordinateur) / Kephren (Structure) / Pouget Consultants (Fluides) / Capri (Acoustique) / Bassinet Turquin (Paysage) / Artelia (Environnement) / CSD & Associés (SSI) / Socotec (Contrôleur technique)
Photographe : /
Localisation : ZAC Seguin, Boulogne-Billancourt (92), France
Surface : 40 000 m² de bureaux et 12 800 m² de logements (Lot 4 :
6 381 m²)
Coût : /
Avancement : APD
Label environnemental : NF Habitat HQE










