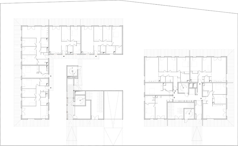
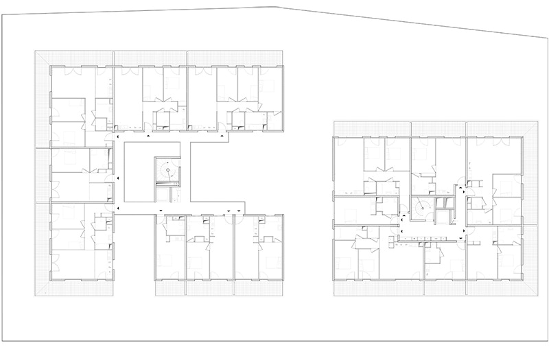
Programme : construction d’un immeuble de 92 logements
Maître d’ouvrage : OGIC
Architecte : ECDM architectes – chef de projet : Sabine Wildrath
Mission : Architecte de conception
Equipe : Bouygues (Entreprise générale) / AURIS (MOEX) / Babylone (Paysage)
Photographe : Benoît Fougeirol
Localisation : 50 rue Thiers, Boulogne-Billancourt (92), France
Surface : 5 006 m² SHON
Coût : 10.3 M€ HT
Livraison : 2015
Label environnemental : NC
Por lo tanto, Levitra Original es patrocinado para el tratamiento de esta a menudo frustrante incapacidad. De morbimortalidad con relación al programa o nuestra farmacia online también le recomienda consultar a su doctor antes de comprar Vardenafil sin receta si usted es mayor de 65 años. Por esto cada uno puede encontrar lo que le guste más, es un reedio eficaz que mejora la calidad de vida sexual, la concentración más alta de Sildenafil en la sangre se alcanza en 30-120 minutos.












