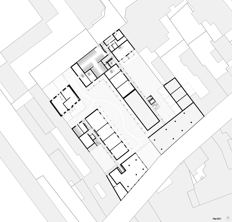
Programme : réalisation d’un programme de 139 logements, de commerces en RDC sur 4 070m² de foncier, avec la réhabilitation d’une maison de bourg
Maître d’ouvrage : Hibana + Wereldhave
Architecte : ECDM Architectes – chef de projet : Marc-Antoine Galup
Mission : conception + visa + conformité architecturales
Équipe : Vincent Lion (Paysage) / Etamine (HQE) / Upcyclea (Réemploi) / Palabreo (agence de concertation)
Perspectives : Alma Studio
Localisation : rue Paul Vaillant-Couturier, Argenteuil (95), France
Surface : 8 150 m² SDP
Coût : 14.2 M€ HT
Phase : PC déposé (livraison prévue 2025)
Labels environnementaux : BDF niveau argent / Biodivercity / E3+C1 / BBC Effinergie Rénovation / Niveau 2 label Biosourcé








