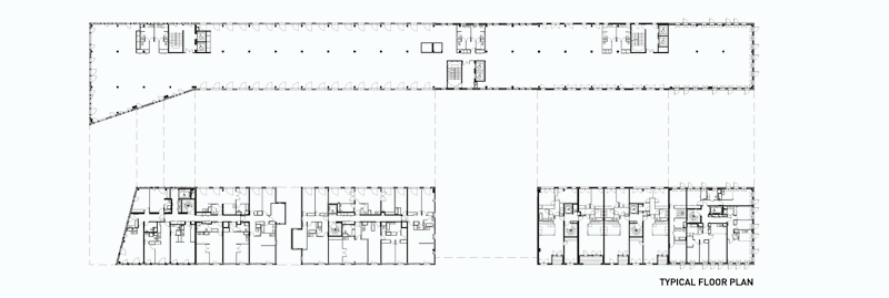
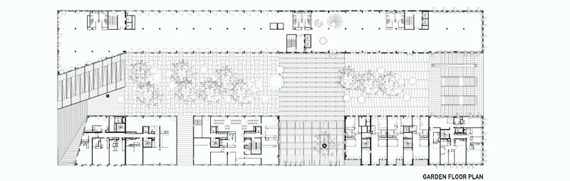
Programme : Logements, bureaux , résidence handicapée et foyer pour jeunes travailleurs ![]()
Maître d’ouvrage : ING Real Estate + ATEMI
Assistant à la Maîtrise d’ouvrage : GEO-DE
Architecte : ECDM architectes – chef de projet : Thomas Raynaud
Mission : mission complète d’architecte
Architectes des autres lots : Erick van Egeraat / Pierre Gautier / Manuelle Gautrand / MVRDV
Équipe : Debray Ingénierie (MOE EXE) / Khephren (Structure) / LTA (Economiste) / Alto (Fluides, HQE, Courants forts/faibles) / VA-A (Façade) / Peutz (Acoustique)
Entreprises : Eiffage Construction / EGA / Billon / Schindler / SA Aubonnet & Fils / Suscillon / Lenoir Métallerie / Zancanaro
Photographe : Philippe Ruault
Localisation : rue Denuzière, Lyon Confluence (69), France
Surface : 9 000 m² HON (total projet : 28 000 m² HON)
Coût : 10.8 M€ HT
Concours 2004 / Études 2005-2008 / Livraison 2010
Labels environnementaux : BBC / Qualitel
Le Monolithe est né du dialogue entre un client, ING et cinq architectes européens : Winy Maas (MVRDV), Pierre Gautier (PGA), Manuelle Gautrand (MGA), Erick van Egeraat (EEA) et ECDM. Il en résulte une architecture à 5 mains dont la valeur résulte de la combinaison entre l’application de règles communes et une variété de traitements.
Habiter Lyon Confluence, c’est avant tout habiter le centre lyonnais avec ses services, son paysage culturel, son animation. L’enjeu de l’opération consistait plus à inscrire un édifice dans un paysage urbain qu’à produire un objet architectural: complexifier la ville, imbriquer, mettre en situation des événements improbables, proposer sans mimétisme ni posture formelle une sédimentation caractéristique des centres anciens. Notre projet définit un cadre de vie contemporain reposant sur les valeurs de la ville historique avec deux aspirations fortes et convergentes : un environnement moderne et une qualité de vie saine prenant en compte les exigences d’un développement durable.
En interaction directe avec le bâti environnant, le projet s’inscrit dans les gabarits, les alignements, les trames, les valeurs qui régissent l’ensemble de l’îlot. Le bâti est compact, avec un développé de façade optimisé au regard de la surface de plancher développée ; le bâtiment est peu déperditif, rationnel, économique. Filiation entre un aménagement et un paysage, le plan masse est conçu en fonction des données naturelles du site: le projet optimise les qualités d’ensoleillement, de luminosité, de vue. le bâtiment est élément d’une sédimentation, imbriqué dans une composition urbaine complexe et rigoureuse. La démarche est programmatique, le bâtiment abrite, contient, additionne commerces, résidence handicapée, résidence hôtelière, bureaux, résidence en accession et résidence sociale.
Le projet est tranche d’urbanité, réalisme social, proposition transversale pour de la diversité avec comme dénominateur commun, une architecture synthétique et ambigüe : une même qualité de façades pour l’ensemble des programmes accueillis, une même enveloppe sans hiérarchisation ou expressionnisme social, une image affichant une prudente neutralité par rapport à tout déterminisme fonctionnel. Il se pourrait qu’un jour, à l’instar des ateliers de tissage lyonnais, les bureaux deviennent logements et vice versa.

















