programme : construction d’un EHPAD, d’un foyer d’accueil médicalisé, d’une crèche et d’un Centre médico-psycho-pédagogique dans le cadre de l’évolution des activités du site de Notre Dame de Bon Secours
maître d’ouvrage : Immobilière 3F
architecte : ECDM architectes – chef de projet : Alexandre Taillardat
localisation : 68 rue des plantes, Paris XIV
superficie : 6 835 m² SHON
coût : 29 M€ TTC
concours 2010
Il y a avant tout cette volonté très forte de retrouver une appartenance à un site, de s’inscrire dans un environnement structuré par un jardin, par des vides et des perspectives. Il y a aussi cette conscience omniprésente que l’accueil des patients est un projet global dans lequel un site et des programmes sont intimement liés, le bâti et son environnement participant au même processus d’intégration lorsqu’il il s’agit d’offrir l’hospitalité à des êtres en état de fragilité. Notre projet est donc une proposition où les contingences techniques et fonctionnelles sont dissoutes dans une réflexion plus large sur la mise en œuvre d’un cadre de vie. Le projet est pensé comme un lieu d’échanges qui s’inscrit dans la continuité, sans rupture avec la dynamique de la ville. La vie se prolonge à l’intérieur d’un territoire calme et protégé, ouvert sur la ville, où les proches des patients sont accueillis dans un environnement contemporain, dynamique, conjuguant espaces calmes et activités, où les nouveaux arrivants trouvent repères et filiation avec leur vécu, où le personnel évolue dans un lieu de travail performant, en prise avec les évolutions et recherches qui animent ses domaines d’intervention.
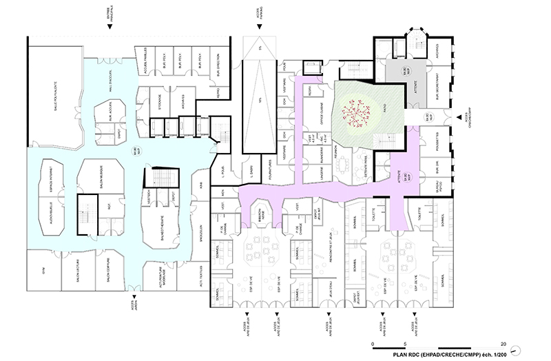
L’entrée première, l’élément fédérateur est le jardin ; il distribue les programmes et services, et organise la compréhension et le repérage du site. A la fois complément et extension des espaces de résidence. Il est articulation et liaison, espace de déambulation et de loisir, et élément constitutif du quartier. Les espaces libres doivent devenir espaces de jardin – surfaces affranchies au maximum de contingences techniques –, aussi le projet organise-t-il les déplacements en privilégiant la déambulation des piétons sans sacrifier en rien à l’efficacité requise pour les autres types de mobilités.
La mise en relation des différents bâtiments est organisée par un plan en croix, un cardo documanus hérité de l’histoire du lieu, qui distribue la majorité des programmes accessibles. Notre travail a été d’y réduire a minima la présence des véhicules et de gommer les infrastructures liées à leur utilisation. Pour cela, nous avons rapproché l’accès au stationnement des entrées et sorties donnant sur le domaine public. La rampe du parking véhicules légers est incluse dans un volume bâti, implanté à proximité d’une articulation avec l’espace public, ce dispositif participant à la réduction des pollutions sonore et visuelle. La plateforme de livraison est conservée à sa place actuelle, desservie par un cheminement périphérique à l’écart du centre du site. Le dessin de la voirie en courbes et contre-courbes contraint la vitesse des déplacements. Deux aires de dépose sont prévues à proximité de l’entrée de chaque bâtiment à l’exclusion de toutes places de stationnement en surface.
La mise en relation entre le centre Bon Secours et la ville se fait au travers d’un filtre végétal. Ce qui est donné à voir depuis l’espace public est avant tout un écrin végétal. Ce jardin, cette respiration est un bien collectif qui participe à la constitution d’un paysage dé-saturé. Les bâtiments projetés sont pensés comme des éléments complémentaires des masses arborées du site. Leur écriture architecturale propose un travail sur la matière, la texture et la chromatique afin de confondre l’enveloppe et son écrin, dans une mise en valeur des qualités existantes et finalisées du site. Cette réflexion s’inscrit dans un travail global où, en complément de valeurs urbaines, les façades sont pensées pour le confort des habitants et des utilisateurs. Même si l’ensoleillement peut être agréable, il doit pouvoir être choisi ; en effet, il est souvent vécu par les personnes malades ou âgées comme un inconfort ; la question des surchauffes et des pics de température nous ont conduits à proposer une protection solaire simple, pérenne et généralisée. Ainsi l’ensemble des pièces de vie est protégé par des brise-soleil extérieur en aluminium laqué micro-perforé. Un jeu aléatoire est généré par l’assemblage de 5 éléments ayant chacun leur géométrie et coloris propres. Ce jeu graphique tend à fondre les bâtiments avec le branchage des arbres du site. Cette volonté est déclinée par un travail chromatique des brise-soleil reprenant les tonalités automnales. Depuis l’intérieur, ces brise-soleil jouent aussi le rôle de garde-corps haut. Leurs formes libres permettent d’échapper à toute géométrisation en jouant avec un filtre libre d’inspiration végétale.
La volumétrie des bâtiments cadre les percées visuelles. Les constructions proposées sont rectilignes, à l’alignement des volumes existants, accompagnant et cadrant les perspectives dégagées et mises en scène par le nouveau plan d’aménagement. Les volumétries sont ensuite travaillées en strates successives définies par la spécificité du programme contenu. Chaque élément de programme gagne ainsi en autonomie avec un plateau sur lequel sont regroupés tous les services le composant. Il en résulte 2 monolithes fragmentés, découpés par de vastes terrasses. Cette organisation volumétrique a été pensée pour pouvoir générer de très bonnes articulations entre les lieux de vie et l’extérieur, pour gérer au mieux l’apport lumineux, la protection contre un ensoleillement trop direct, l’ouverture et la vue vers des paysages animés et vivants. Il s’agit de générer une architecture-interface qui permette aux patients de rester en liaison avec leur environnement, les saisons, le climat, la ville, etc.
























