programme : restructuration de la Villa Greiner (site classé) et création du Centre de l’illustration
maître d’ouvrage : Ville de Strasbourg
architecte : ECDM architectes – chef de projet : Louis-Antoine Grego, Ingrid Jegousse
muséographe : Roberto Ostinelli
BET : OTE
photographe : Luc Boegly
localisation : Strasbourg (67)
superficie : 1 200 m²
coût : 1.5 M€ HT
concours : 2005
livraison : 2007
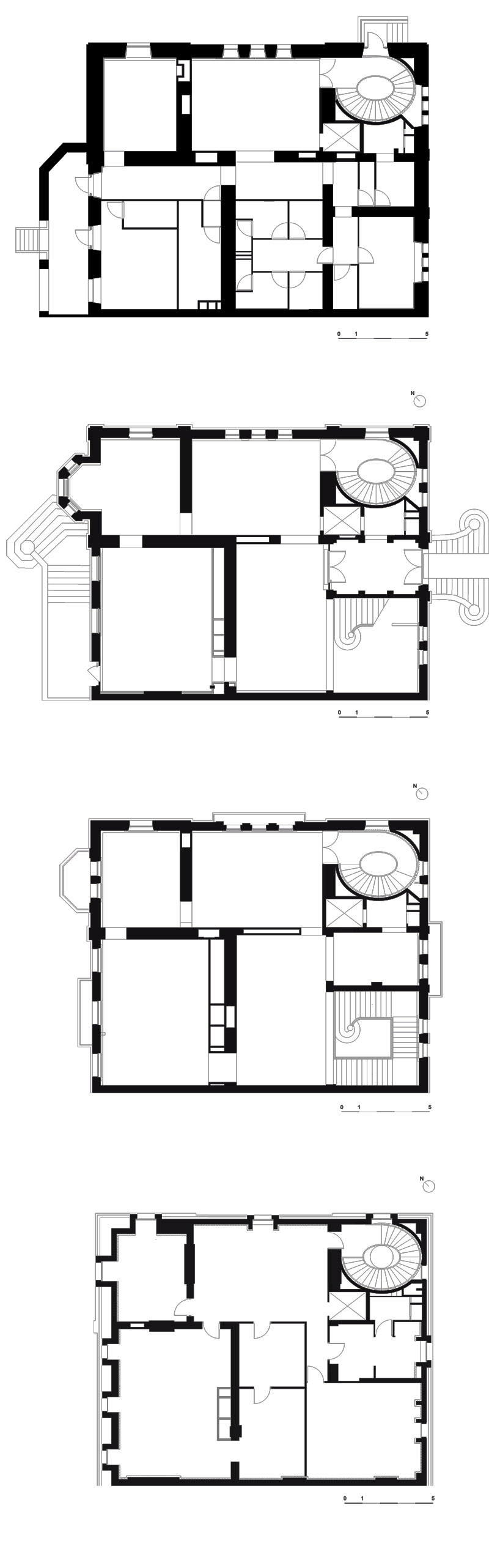
Situé dans le quartier dit de « Ville neuve » à proximité de la place de la République, le Centre de l’illustration Tomi Ungerer occupe la villa Greiner, construite en 1884 par l’Architecte Samuel Revel. Sa destination en fait un lieu important de l’activité culturelle de la ville de Strasbourg. Dès lors, il s’agit de conserver les qualités architecturales spécifiques au paysage urbain Wilhehmien tout en donnant une lisibilité et une spécificité propres à un lieu majeur du paysage culturel Alsacien.
Par ce changement de programme, le bâtiment résidentiel à caractère bourgeois change de statut pour devenir lieu public, espace d’accueil ouvert aux curieux, aux érudits, aux chercheurs et autres passionnés. Notre travail conceptuel fut de synthétiser les exigences réglementaires, les contingences techniques, proposer une identité spécifique, une lisibilité à un espace culturel dans une proposition architecturale globale.
C’est une intervention contemporaine dans un écrin du XIX. De l’extérieur nous conservons le bâtiment dans son intégralité, son intégrité, notre intervention étant limitée aux baies, surfaces interfaces qui exigent quelques sophistications pour répondre au cahier des charges du musée.
Cette mise en œuvre renforce l’identité du lieu, permet de singulariser le Centre de l’illustration dans son contexte, de lever l’ambiguïté sur le statut du lieu. La Villa Greiner échappe à sa détermination résidentielle pour devenir lieu culturel. Notre proposition tend à conjuguer la spécificité et la multiplicité des contraintes dans une poésie de situation globale.
Situated in the district of “Ville Neuve” near the “place de la République”, the Museum for the Tomy Ungerer Collection sets in the villa Greiner, built in 1884 by the Architect Samuel REVEL. Its destination makes it will become an important place of the cultural activity of the city of Strasbourg. From then on, it is a question of preserving the specific architectural qualities in the landscape urbaina Wilhehmiens while giving legibility and specificity appropriate for a major place of the Alsatian cultural landscape. By this change of program, the residential building changes its status to become public place, opened to the curious, to the scholars, to the researchers and the other passionate persons.
Our abstract work was to synthesize the statutory requirements, the technical demands, to propose a specific identity, visibility for this cultural space in a global architectural proposition. It is a contemporary intervention in a base of 19th century. From the outside we preserve the building in its entirety, its integrity, our intervention being limited to windows, interface surfaces which require some sophistication to answer the specifications of the museum. This work strengthens the identity of the place, to individuate the Center of the illustration in its context, to raise the ambiguity on the status of the place. The villa Greiner escapes from its residential determination to become cultural place. Our proposition tries to conjugate the specificity and the multiplicity of the constraints in poetry of global situation.













