Programme : construction d’un ensemble immobilier comprenant des bureaux, des commerces, l’accès RATP et l’habillage de la gare RATP d’Asnières-Gennevilliers
Maître d’ouvrage : VINCI Immobilier
Architecte : ECDM architectes – chef de projet : Benjamin Ferrer
Mission : –
Équipe : –
Localisation : avenue Pierre de Coubertin, Asnières-sur-Seine (92), France
Surface : 1 950 m² SHON
Coût : NC
Concours : 2012
Label environnemental : –
Le projet est avant tout une proposition architecturale afin de répondre au mieux aux problématiques urbaines qui se développent dans le quartier en mutation de Coubertin. Les enjeux du concours sont avant tout la structuration d’un carrefour, d’un point nodal singulier qui concentre de nombreux réseaux de transports publics. Cette qualité en termes d’équipements doit désormais être relayée par des programmes architecturaux ambitieux qui affirment l’identité d’un nouveau quartier porteur des valeurs de notre époque.
En rupture avec un urbanisme issu de la modernité, il s’agit d’affirmer maintenant une architecture composite abritant des programmes multiples et une forme urbaine où la densité permet la structuration de l’îlot, où l’architecture vient se confronter avec l’espace public. Cette situation, au croisement de deux axes majeurs reliant la ville au réseau routier métropolitain donne aux façades de l’immeuble de bureaux un rôle prépondérant dans la lecture du bâtiment comme un marqueur de l’entrée de ville.
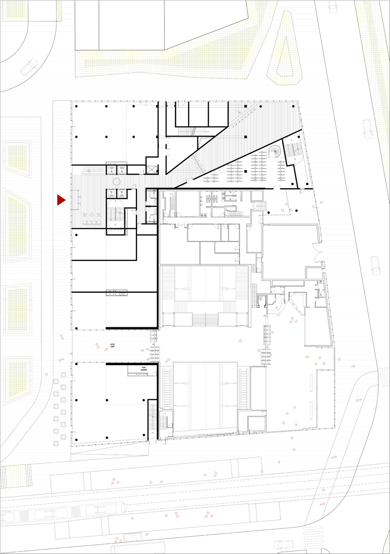
L’autre enjeu majeur du projet se place dans la gestion des différents flux que va engendrer l’hybridation de la station de tram et de métro, la zone commerciale du mail piétonnier de l’avenue nouvelle ainsi que le hall d’entrée de l’immeuble de bureaux.
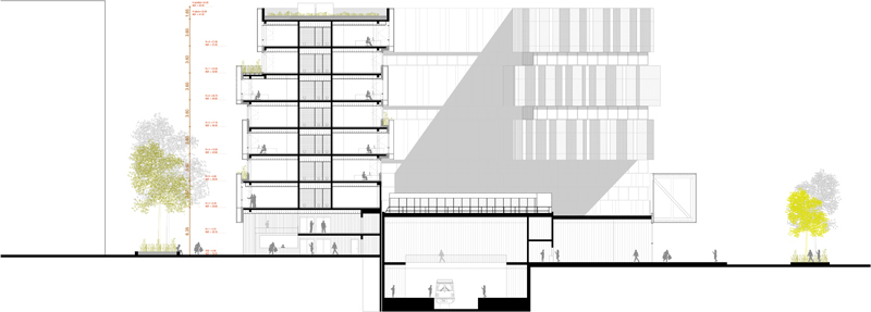
Le projet doit donc générer une unité de lieu tout en générant lui-même de la continuité visuelle et articuler des situations en proposant une identité forte. Comme réponse à ces enjeux, nous avons voulu travailler une volumétrie autour de la superposition de strates. Strates «hautes» abritant les locaux de l’immeuble de bureaux et strates «basses» venant englober et unifier la station de métro dans l’opération. Un jeu de décalage et d’alternance entre les niveaux totalement vitrés et les niveaux habillés par un revêtement métallique vient animer la volumétrie générale du bâtiment et donner une identité forte et dynamique à l’entrée de ville.
Notre projet se caractérise par la définition d’un dénominateur commun, d’une caractéristique architecturale majeure à même de donner une cohérence forte à la structuration de l’îlot et du carrefour. Afin d’hybrider au mieux la station de métro au sein de l’opération de bureaux, nous étendons la logique de stratification des deux premiers niveaux du bâtiment de bureaux devant la gare. Cette «strate» collective se compose de deux entités: l’une de verre à RDC et l’autre d’une résille au premier niveau, vient définir un rapport au sol, un rapport entre espace public/espace privé, dans une linéarité modulable. Plus que d’un vocabulaire architectonique, il s’agit d’un système pouvant changer d’état, évoluer, s’adapter en relation avec les programmes que ces lanières viennent habiller.
Le projet se pose comme un signal fort de dynamisme au sein du nouveau quartier de Coubertin. A la fois dense et hybride avec l’imbrication de la station de métro dans l’écriture architecturale du volume, le projet se veut également subtile en habillant certaines «strates» d’une résille métallique. A l’instar de stores micro-perforés, la résille laisse passer le regard pour garantir un confort visuel aux utilisateurs des bureaux depuis l’intérieur alors qu’elle présente via un jeu de pliage un aspect de voilage évanescent depuis l’extérieur.
La strate du transport que nous mettons en place via le bandeau qui entoure la gare et le bâtiment sur les deux premiers niveaux permettra d’interagir de façon active dans la mobilité du site. Selon les typologies et vitesses de déplacement, différentes informations seront mis en place sur ce bandeau, de la signalétique publicitaire jusqu’aux informations des déplacements quotidiens. Notre intervention se pose comme alternative au simple façadisme. Intégré de manière raisonnée dans la volumétrie et le langage architecturale du projet, ce socle commun doit profiter de sa position stratégique à l’angle de deux grandes voies de transports (piétons, automobiles, tram, bus et métro) pour donner une valeur ajoutée intelligente au projet.




















